Restaurant scolaire Yves Montand
Maitrise d'Ouvrage : Commune de Neuf-Berquin
Equipe : PLATO Architecture + BRIX + THEMYS + BEHAL
Equipe PLATO : Albane Siner, Stéphane Simon, Emilien Cathelain, Alain Hurel
Programme : Réhabilitation et extension de bâtiments communaux en restaurant scolaire avce office de remise en température et garderie
Superficie : 350m² de surface plancher
Phase : Livré
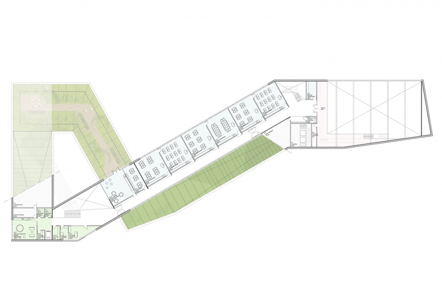
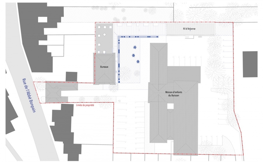
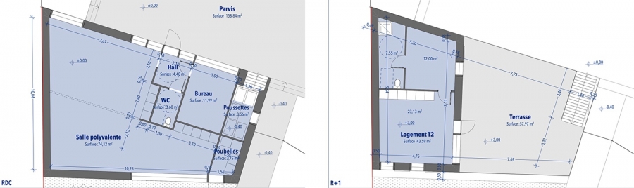
Situés en face de la place de la mairie, deux maisons de ville mitoyennes, propriété de la commune, ont été été réhabilités et dotés d’une extension afin d’offrir aux élèves de l'école Yves Montant un restaurant scolaire avec office de réchauffe (100 couverts en un seul service) ainsi qu’une garderie à l’étage.
La volumétrie et la matérialité de l’intervention s’inscrivent en cohérence avec l’environnement bâti du site, tout en en assurant le contraste et la lisibilité. L’extension se développe en L, à l’angle du pignon Sud-Ouest, et se compose de deux volumes. Côté rue, elle prolongera le gabarit des bâtiments conservés en R+1 et combles avec une toiture à double pans asymétriques afin d’intégrer le projet dans son contexte de centre-village tout en assurant la continuité du front bâti existant. Côté cour, le volume accueillant la salle de restauration se développera en simple rez-de-chaussée, en accord avec le bâtiment voisin.
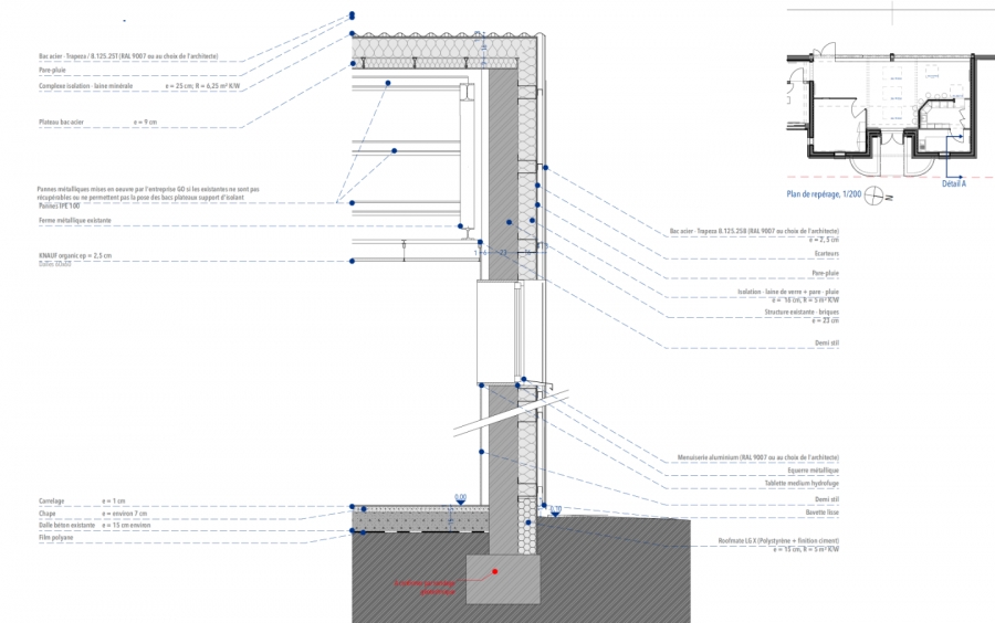
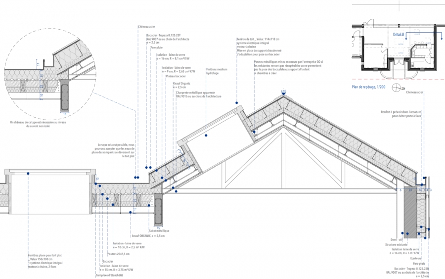
L’extension en ossature bois présente une enveloppe en bardage bois, tantôt ajourée, tantôt en pose à couvre-joints, afin de limiter les apports solaires et rapprocher l’intervention de l’écriture architecturale déjà présente sur le site. Ce même bardage se prolongera jusqu’à la couverture afin de réaliser une surtoiture bois, support de panneaux photovoltaïques sur son versant Sud.
Le projet fait ainsi la part belle à l’emploi du bois, de la structure au bardage et de la sur-toiture aux parements intérieurs, jusqu’au mobilier de bancs et de casiers dessiné sur mesure.
L’intervention pour la commune de Neuf-Berquin vise à répondre aux trois enjeux : intégrer le projet dans le village, proposer un équipement fonctionnel adapté aux besoins de l’ensemble des usagers et garantir un équipement performant et pérenne.





